暮らし向上リノベーション
地震への不安を解消し、安心して暮らせる住まいへ再生します。
フルリノベーションの場合は、一棟一棟耐震診断を行い、その結果を踏まえた上で、上部構造評点が1.0以上となるように基礎や耐力壁、耐震金物による接合部補強などをご提案します。また、実際に解体した現場を見て、必要だと診断した部分には、柱や梁などの構造材自体にも補強を行います。
耐久性の高い素材や雨漏りに強い納まりに変更し建物を長寿命化します。
家の見た目をきれいにするだけではなく、お客様が健康で快適に暮らせる断熱性能を数値化し、向上させるリノベーションを施します。
断熱材の種類や性能については、一棟一棟そのお宅に適したものをご提案させていただきます。
間取りで使いにくかった場所や古くなってしまった設備機器等について、住まい手さんの生活や趣味嗜好に合わせ、機能性とデザインを一新いたします。
1F
Before

After

①玄関
造作の靴箱を撤去し、家族みんなで使えるように大容量の靴箱を新設しました。撤去した靴箱の場所には木製ベンチを新設。ゆったり座れて靴を履くことができます。
②洗面・浴室
全面タイル貼りで北一面大きな窓が設けられた寒々しい浴室は、ユニットバスに改修し、窓を小さくすることで断熱性を良くしました。使い勝手の悪かった洗面脱衣室は、収納がしやすいよう造作で仕上げました。
③リビング
造作の飾り棚を撤去し、広々とした空間に改修しました。飾り棚を無くしたことで、居室の出入口も広く使えるようになりました。窓は既設サッシのガラスを単層から複層に変更することで断熱性を良くしました。
④ダイニング
畳敷きだった茶の間から板張りの居室に改修し、縁側のあった襖を撤去することで一体空間として広々使えるようにしました。リビングに続く建具は引違戸から引込戸にすることで、よりリビングとダイニングの空間が繋がるようにしました。
⑤キッチン
ダイニングキッチンだった居室をキッチンのみに変更し、壁を新設することにより廊下側で使用できる物入れと洗面台を新設しました。茶の間と仕切られていた建具は撤去し、ダイニングと繋がる空間としました。
⑥洗濯室
土間部分が多かった洗濯室は、フローリング部分を広く新設することで使い勝手を良くしました。
⑦寝室(1)
納戸状態になっていた夫婦室は畳敷きからフローリングに改修し、将来寝室として使えるようにしました。北面にあった押入れを撤去し、広々使えるウォークインクローゼットに改修しました。
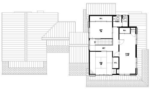
2F
Before

After

⑧寝室(2)
納戸だった居室はご主人の寝室へ改修しました。北一面にあった押入を撤去し、ワークスペースとして広く活用できる空間としました。
⑨寝室(3)
和室だった居室は、奥様の寝室へ改修しました。畳敷きをフローリングに変更し、押入部分をウォークインクローゼットにすることで収納部分を広く使える間取りにしました。
⑩子供室
子供室は北面にあった押入を撤去し、広く活用できる空間へ改修しました。北側にあった使われていない洗面室を撤去することで、子供室のウォークインクローゼットとして活用出来る空間に変更しました。





